Propiedades

Descripción
Metros:

45.00 mt²

Dormitorios:

2 dormitorios

Baños:

1 baños

Ambientes:

3 ambientes

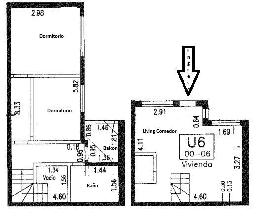
Departamento tipo dúplex en venta de 2 dormitorios – Carriego 1052 Desarrollado en dos plantas: Planta baja: ingreso a living comedor con cocina integrada y baño de servicio. Planta alta: dos dormitorios, baño completo y balcón con espacio para lavarropas. Superficies: Planta baja: 17,49 m² cubiertos Planta alta: 25,83 m² cubiertos + 2,50 m² semicubiertos Antigüedad: 2016 Departamento interno dentro de un complejo de 6 unidades Ubicación: Carriego 1052, en zona residencial de barrio Echesortu, a metros de Av. Pellegrini, con cercanía a comercios de uso diario, líneas de transporte y rápida conexión hacia el centro, zona oeste y Fisherton. Se encuentra alquilado hasta Septiembre 2026. Las fotos corresponden a otra unidad del mismo complejo, con igual distribución y características.

Todos los detalles
Ubicación

Dirección: Carriego 1052

Zona: Echesortu

Provincia/Estado: Santa Fe, Argentina

Código postal: 2000

PH en venta

Departamento 2 dormitorios en Venta. Carriego 1000

Carriego 1052 - Echesortu - Echesortu, Rosario, Santa Fe
USD 40.000 En venta ACTIVA
  • Apto credito Esta propiedad es apta para credito

  • Ambientes: 3
  • Dormitorios: 2
  • Baños: 1
  • Estacionamientos: -
  • Superficie: 45.00mt²
  • Cubierto: 43mt²
Descripción

Departamento tipo dúplex en venta de 2 dormitorios – Carriego 1052 Desarrollado en dos plantas: Planta baja: ingreso a living comedor con cocina integrada y baño de servicio. Planta alta: dos dormitorios, baño completo y balcón con espacio para lavarropas. Superficies: Planta baja: 17,49 m² cubiertos Planta alta: 25,83 m² cubiertos + 2,50 m² semicubiertos Antigüedad: 2016 Departamento interno dentro de un complejo de 6 unidades Ubicación: Carriego 1052, en zona residencial de barrio Echesortu, a metros de Av. Pellegrini, con cercanía a comercios de uso diario, líneas de transporte y rápida conexión hacia el centro, zona oeste y Fisherton. Se encuentra alquilado hasta Septiembre 2026. Las fotos corresponden a otra unidad del mismo complejo, con igual distribución y características.

Detalles
  • Código: KP459099
  • Categoría: PH
  • Estado: Activa
  • Venta: USD 40.000
  • Dirección: Carriego 1052
  • Zona: Echesortu
  • Barrio: Echesortu
  • Ciudad: Rosario
  • Provincia: Santa Fe
  • País: Argentina
  • Apto credito:
  • Ambientes: 3
  • Dormitorios: 2
  • Baños: 1
  • Baños de servicio: 1
  • Superficie total: 45.00
  • Superficie cubierta: 43
  • Año de construcción: 2016
  • Expensas: ARS 26.500
Últimas Propiedades